62,65 m²
Fläche
5
Räume
399,00 €
Kaltmiete/Monat
189,00 €
Nebenkosten/Monat
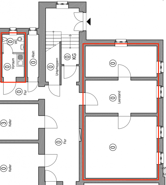
Grundriss
Die angebotene Mietfläche ist im Souterrain des Mehrfamilienhauses in der Carl-von-Ossietzky-Straße 21 in 16225 Eberswalde gelegen.
Die Gesamtfläche von 62,65 m² verteilt sich auf 3 Büroräume, sowie eine Teeküche und ein WC - Raum zur Alleinnutzug (auf dem Vorflur gelegen).
Aufgrund der zahlreichen Fenster in der Mieteinheit ist eine gute Beleuchtung trotz der Lage im Souterrain gegeben.
Zusätzlich besteht die Möglichkeit, sowohl Garagen als auch PKW-Stellplätze auf dem Grundstück anzumieten.
Die hier angegebenen Preise verstehen sich jeweils zzgl. der gesetzl. MwSt. (derzeit in Höhe von 19%).
Änderungen vorbehalten. Für den Inhalt des Mietverhältnisses ist allein der geschlossene Mietvertrag nebst Anlagen verbindlich.
Die im Jahre 1892 errichtete, voll unterkellerte Mehrfamilienhausvilla in Klinkerbauweise befindet sich als eine der schönsten Villen der Gegend im exklusiven Eberswalder Villenviertel. Sie verfügt über sieben Wohneinheiten, die sich auf drei Etagen verteilen. Das Objekt wurde zur Jahrtausendwende umfassend saniert und seitdem fortlaufend instandgehalten und modernisiert. Darüber hinaus befindet sich die Villa auf einem parkähnlichen, sehr gepflegten und ca. 2.600 qm großen Grundstück, auf dem sich jeweils sieben Stellplätze und sieben Garagen befinden. Das Haus ist mit seinen zahlreichen Bossierungen und der selten gewordenen Schiefereindeckung ein echtes Unikat und bietet ein Wohnerlebnis der Extraklasse. Die Wohneinheiten wurden nach der grundhaften Sanierung um das Jahr 2000 nach Bezugsfreiheit stetig renoviert und befinden sich demnach ebenfalls im sanierten Zustand. Das Treppenhaus besticht durch zahlreiche Verzierungen und einen handgefertigten und originalen Treppenlauf und unterstreicht damit den einzigartigen Charakter dieses Hauses.
Fußweg zu öffentl. Verkehrsmittel (Bus)
2 min. (Eberswalde, Pfeilstr.)
Eberswalde ist die Kreisstadt des Landkreises Barnim im Nordosten des Landes Brandenburg und zählt aktuell 42.664 Einwohner (Stand: 31.08.2021). Die Gemeinde liegt circa 50 Kilometer nordöstlich von Berlin und etwa 22 Kilometer westlich der Oder. Nach Bad Freienwalde beträgt die Entfernung ungefähr 17 Kilometer in südöstlicher Richtung. Mit dem Zug erreichen Sie den Berliner Hauptbahnhof innerhalb von 30 Minuten, von dem man problemlos und in kürzester Zeit zu allen Berliner Einkaufszentren und Sehenswürdigkeiten sowie auch in die Szene-Bezirke gelangt. Als Mittelzentrum befinden sich in Eberswalde eine Reihe von Dienstleistungen der täglichen Daseinsvorsorge. Die Carl-von-Ossietzky-Straße liegt südlich des Stadtzentrums im beeindruckenden Villenviertel der Stadt Eberswalde und ist eine der beliebtesten Wohnlagen der Stadt Eberswalde. Die Immobilie ist umgeben von sehenswerten, freistehenden und aufwendig verzierten Altbauten, die sich auf parkähnlichen Grundstücken befinden. Südlich grenzt der Botanische Garten Eberswalde an und bietet für Familien und Naturbegeisterte eine erholsame Abwechslung vom Alltag.