171,00 m²
Fläche
999,00 €
Kaltmiete/Monat
450,00 €
Nebenkosten/Monat
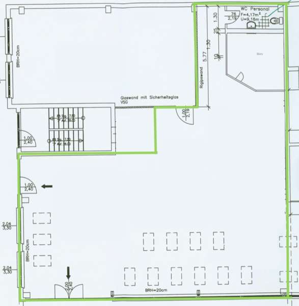
Grundriss
Wichtige Information: Wir bitten Sie höflich, ausschließlich die Kontaktfunktion oder das Kontaktformular zu verwenden und von telefonischen Anfragen abzusehen!
Die zur Vermietung angebotene Lager- / Gewerbefläche erstreckt sich über eine Fläche von etwa 171,00 m² und befindet sich im Erdgeschoss eines Wohn- und Geschäftshauses in der Chausseestraße 8/9 in 16515 Oranienburg.
Die Fläche ist in zwei Räume unterteilt, wie im beigefügten Grundriss ersichtlich ist. Der vordere Bereich, der als Eingangsbereich fungiert, besticht durch bodentiefe Glaselemente, die für eine helle und freundliche Atmosphäre sorgen, indem sie reichlich Tageslicht hereinlassen.
Zusätzlich bietet der hintere Bereich der Fläche ein kleines, separiertes Büro sowie eine WC-Einheit.
Bitte beachten Sie, dass alle Angaben unter Vorbehalt möglicher Änderungen erfolgen.
Verbindliche Details des Mietverhältnisses ergeben sich ausschließlich aus dem abgeschlossenen Mietvertrag samt seiner Anlagen.
Die angegebenen Preise verstehen sich zuzüglich der gesetzlichen Mehrwertsteuer (derzeit 19 %).
Für detaillierte Informationen kontaktieren Sie uns bitte nur über das Formular.
Bitte geben Sie zur besseren Kontaktaufnahme Ihre korrekte Mailadresse und Telefonnummer an. Wir freuen uns auf Ihre Anfrage.
Das Wohn- und Geschäftshaus mit angrenzendem Gewerbegrundstück befindet sich im Oranienburger Norden, verkehrsgünstig gelegen an der Chausseestraße. Insgesamt 13 Wohnungen und 2 größere Gewerbeeinheiten verteilen sich auf ca. 1418 m² vermietbarer Fläche. Durch die schnelle und unkomplizierte Anbindung nach Berlin erfreut sich die kreisangehörige Stadt zunehmender Beliebtheit.
Fußweg zu öffentl. Verkehrsmittel (Bus)
4 min. (Oranienburg, Adolf-Mertens-Str.)
Fußweg zu öffentl. Verkehrsmittel (S-Bahn)
19 min. (S Oranienburg)
Die Liegenschaft befindet sich in der Chausseestraße in der Stadt Oranienburg. Es liegt nur etwa 15 Gehminuten vom Bahnhof Oranienburg und ca. 10 Gehminuten vom Bahnhof Sachsenhausen (Nordb) entfernt. Hier fahren mehrere Regionalbahnen, zum Beispiel nach Templin Stadt, Berlin-Lichtenberg und zum Ostkreuz, nach Potsdam und nach Birkenwerder und sogar bis nach Stralsund/Rostock. Die S-Bahnlinie S1 fährt durch die gesamte Berliner Hauptstadt bis nach Berlin Wannsee. Vom Busbahnhof aus verkehren sämtliche Buslinien.
Mit dem Auto ist man ebenso gut angebunden. Die Autobahn A10, die einmal um Berlin verläuft und daher auch den Namen Berliner Ring trägt, ist nur etwa 10 Minuten entfernt. Die Bundesstraße B273, die in Potsdam beginnt und nordwestlich von Bernau an der A11 endet, liegt ebenfalls in unmittelbarer Nähe. Rund um das Gebäude befinden sich zahlreiche Einkaufsmöglichkeiten und ein Ärztehaus – alles fußläufig und ohne Verkehrsmittel erreichbar.